jervis_3391_PS.jpg
  Existing West Facade 1.  Existing White Stucco  2.  Existing Burgundy Stucco  3.  Existing Windows  4.  Existing Third Floor Suite  5.  Existing Doors  6.  Existing Stairs
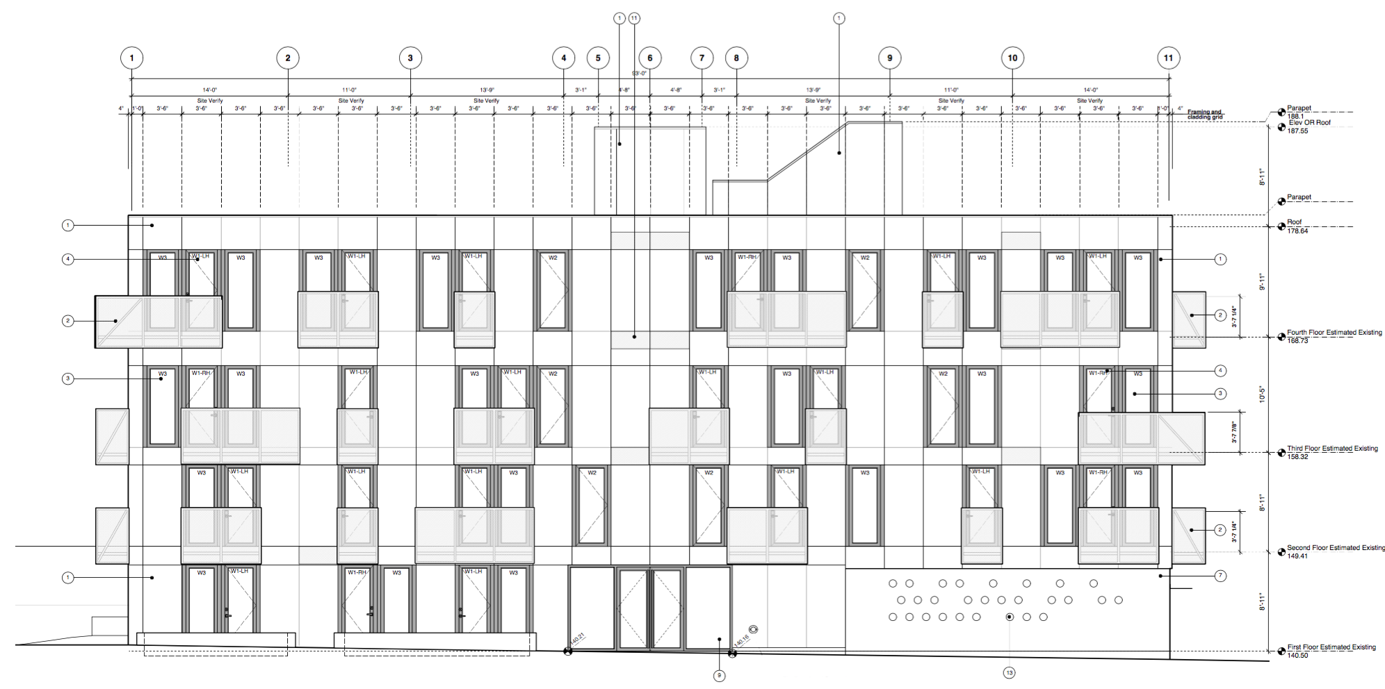
  West Facade 1.  White Cementitious Cladding  2.  Prefabricated Painted Balconies  3.  Windows, Charcoal Frame  4.  Glazed   Doors, Charcoal Frame  5.  Entry Doors With Sidelights, Anodized  6.  Garage Door  7.  Existin
jervis_3082.jpg
VIZ_0165.png
3.png
seamless4 copy.jpg
jervis_3164.jpg
jervis_3262_b.jpg
jervis_3357.jpg
jervis_3097.jpg
  Photo by   Janis Nicolay
prev / next